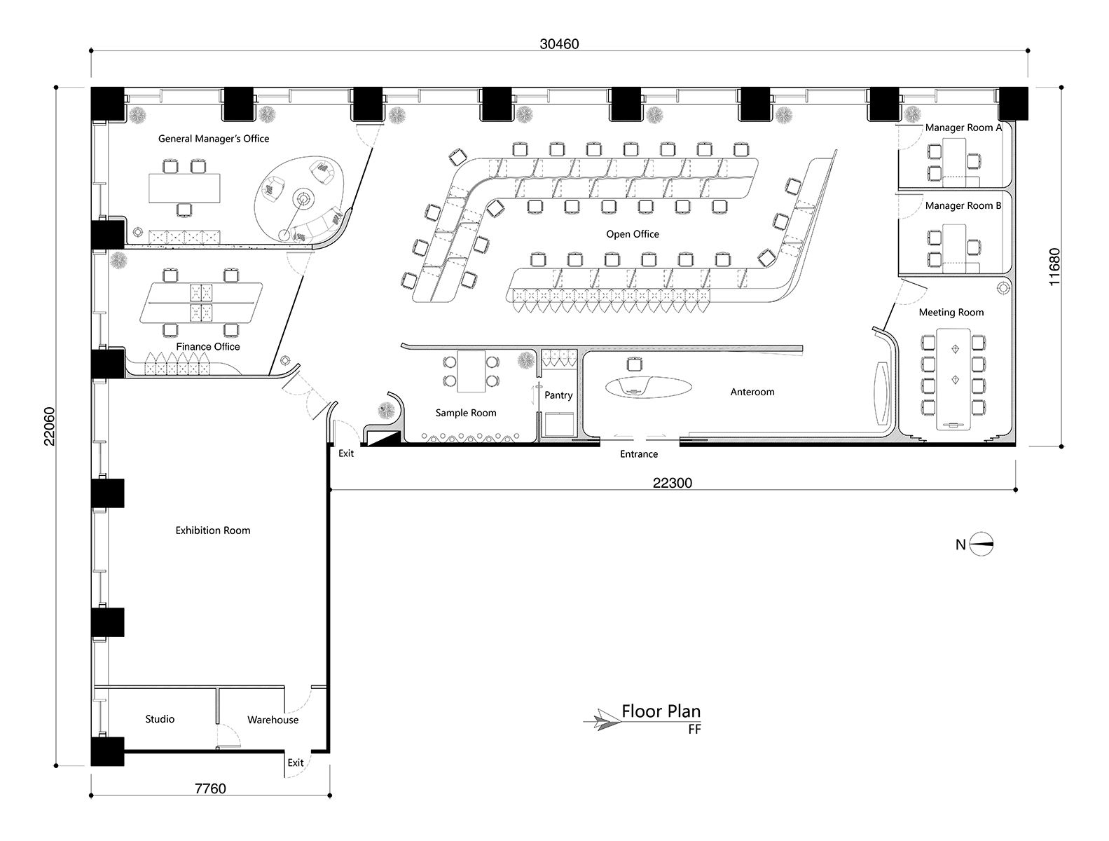
合理規劃空間格局,保證功能區域之間的流暢性和通透性。同時,要考慮員工的工作效率和舒適度,避免擁擠和壓抑感。
類型
辦公空間
合理規劃空間格局,保證功能區域之間的流暢性和通透性。同時,要考慮員工的工作效率和舒適度,避免擁擠和壓抑感。
辦公空間

合理規劃空間格局,保證功能區域之間的流暢性和通透性。同時,要考慮員工的工作效率和舒適度,避免擁擠和壓抑感。

選用高質量、環保的材料,如實木地板、大理石墻面等,不僅美觀大方,還能提升整個辦公環境的品質感。

采用自然采光或人工燈光來營造明亮的空間氛圍,提高工作效率和工作質量。此外,還可以通過燈具的布置和使用來實現不同的氛圍效果。

選擇適合公司形象和風格的顏色方案,可以增加視覺沖擊力和吸引力;同時要注意顏色的明度和飽和度,以達到最佳的效果。

在有限的空間內,可以通過不同材質、形狀和大小的家具和飾品進行組合,創造多樣化的空間層次感和藝術氣息;也可以加入一些綠色植物,增強空氣質量和美觀度。